Dom na sprzedaż Brodnica, Moczadła

4 pokoje
106.00 m²
4 990,57 zł/m2
TWO-DS-136
Oblicz ratę kredytu

529 000 zł

Dom na sprzedaż
Nowa oferta

Szczegóły oferty

Symbol oferty TWO-DS-136
Powierzchnia 106,00 m²
Powierzchnia działki [m2] 882 m²
Liczba pokoi 4
Rodzaj domu wolnostojący
Technologia budowlana beton, gazobeton
Liczba pięter w budynku 1
Wymiary działki 36 m
Okna PCV
Zagosp. działki niezagospodarowana
Ukształtowanie działki płaska
Kształt działki prostokąt
Pokrycie dachu dachówka
Stan budynku do wykończenia
Ogrodzenie działki brak
Rok budowy 2026

Opis nieruchomości

Moczadła, gmina Brodnica 

Na sprzedaż domy wolnostojące realizowane w miejscowości Moczadła, gmina Brodnica, w rejonie stanowiącym przedłużenie ul. Podmiejskiej. Budowa rozpocznie się lada moment a nieruchomości oferowane są na obecnym etapie realizacji inwestycji.

W sprzedaży dostępne są łącznie 4 domy:

  • dom nr 1 – działka o powierzchni 882 m², położona bezpośrednio przy drodze asfaltowej, teren równy – cena 529 000 zł

  • domy nr 2, 3 i 4 – działki o powierzchni około 840 m², położone w odległości około 150 m od drogi asfaltowej, teren z lekkim spadkiemcena 499 000 zł

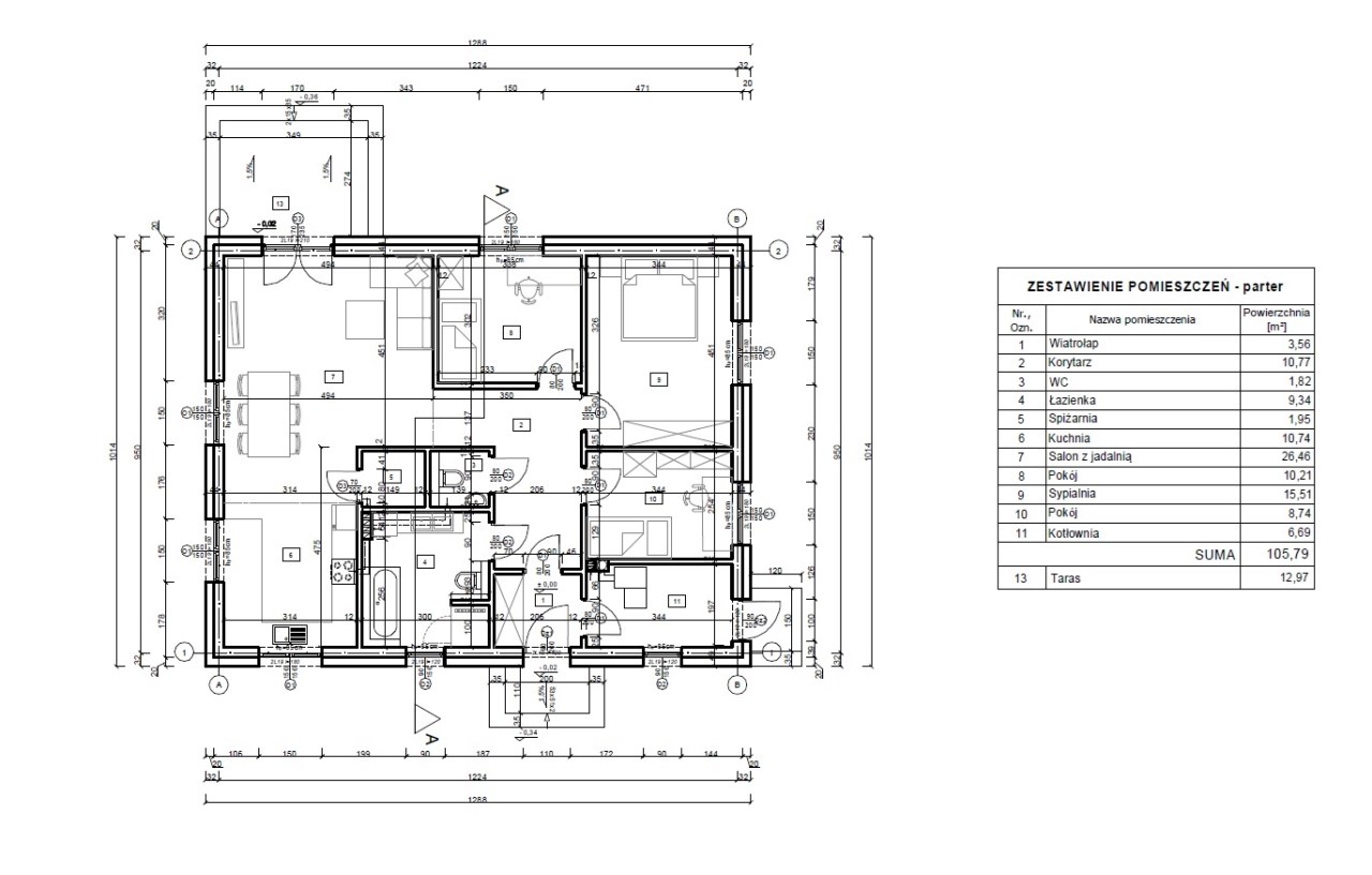
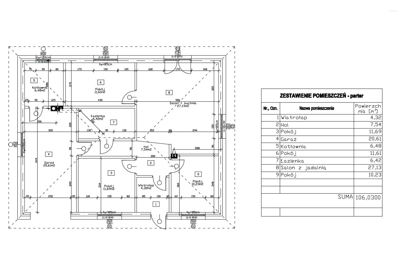
Powierzchnia domu: 106,03 m²
Powierzchnia działek: od ok. 840 m² do 882 m²
Garaż: w bryle budynku

Układ pomieszczeń:

  • wiatrołap – 4,32 m²

  • hol – 7,54 m²

  • pokój – 11,69 m²

  • garaż – 20,61 m²

  • kotłownia – 6,48 m²

  • pokój – 11,61 m²

  • łazienka – 6,42 m²

  • salon z jadalnią – 27,13 m²

  • pokój – 10,23 m²

Suma powierzchni: 106,03 m²

Standard wykonania budynku:
Dom budowany w tradycyjnej technologii murowanej:

  • ściany z gazobetonu (24 cm), ocieplenie styropianem 20 cm,

  • dach o konstrukcji drewnianej z prefabrykowanych wiązarów, pełne deskowanie + papa, pokrycie dachówką ceramiczną,

  • orynnowanie metalowe, podbitka PCV,

  • stolarka okienna PCV – pakiet 3-szybowy z okleiną zewnętrzną,

  • drzwi wejściowe stalowe, ocieplane,

  • brama garażowa segmentowa z automatyką,

Wykonane instalacje:

  • instalacja elektryczna (rozdzielnia, punkty zgodnie z projektem),

  • instalacja wodno-kanalizacyjna,

  • instalacja centralnego ogrzewania – bez źródła ciepła.

Wykończenie:

  • tynki cementowo-wapienne,

  • posadzki cementowe z ociepleniem,

  • strop w technologii suchej zabudowy, ocieplony wełną mineralną,

  • poddasze z podłogą z płyty OSB w części użytkowej.

Dom podłączony do sieci wodociągowej, energetycznej oraz wykonane lokalne szambo.

Cena i zakres:

Dom nr 1 – 529 000 zł
W cenie dom oferowany jest w standardzie deweloperskim niepełnym, obejmującym:

  • budynek bez ogrodzenia,

  • utwardzenie z kostki betonowej o powierzchni ok. 35 m²,

  • brak zamontowanej pompy ciepła (instalacja c.o. przygotowana).

Domy nr 2, 3 i 4 – 499 000 zł
W cenie dom oferowany jest w standardzie deweloperskim niepełnym, obejmującym:

  • budynek bez ogrodzenia,

  • utwardzenie z kostki betonowej o powierzchni ok. 35 m²,

  • brak zamontowanej pompy ciepła (instalacja c.o. przygotowana).

Istnieje możliwość rozszerzenia zakresu prac, doposażenia budynku oraz wykończenia domu pod klucz – szczegóły do uzgodnienia.

Lokalizacja:
Moczadła, gmina Brodnica – spokojna lokalizacja stanowiąca przedłużenie ul. Podmiejskiej, około 1 km od osiedla przy ul. Mieszka I w Brodnicy. Nieruchomości położone są w sąsiedztwie nowej zabudowy mieszkaniowej, w miejscu zapewniającym wygodny dojazd do miasta oraz szybki dostęp do codziennej infrastruktury.

W najbliższej okolicy znajdują się m.in.:

  • sklepy spożywcze,

  • punkty usługowe,

  • osiedla mieszkaniowe,

  • pełna infrastruktura miejska dostępna w krótkiej odległości.

To propozycja dla osób szukających spokojnego miejsca do życia, z jednoczesnym szybkim dostępem do Brodnicy.

Termin:
Planowany termin oddania do użytkowania: IV kwartał 2026 roku.
 

Zdjęcia przedstawiają budynek według tego samego projektu wybudowany w innej lokalizacji oraz aktualne zaawansowanie budowy. Istnieje możliwość dostosowania domu do własnych potrzeb nowego właściciela.


 

Twój Dom Nieruchomości Brodnica
ul. Duży Rynek 21, 87-300 Brodnica
tel. 796 398 607
biuro@twojdom.edu.pl
www.twojdom.edu.pl

Kalkulatory

Kalkulator kredytowy

Wysokość raty

PLN
%

Kalkulator kosztów

Podatek od czynności cywilno-prawnych

Taksa notarialna
(opłata notarialna)

Wniosek o wpis do WKW

VAT od prowizji
agencji nieruchomości

Vat od taksy notarialnej
(opłaty notarialnej)

Prowizja agencji nieruchomości

Wypisy aktu notarialnego

Razem

Uwaga: mogą wystąpić dodatkowe opłaty za założenie księgi wieczystej oraz ustanowienie hipoteki.

PLN
PLN
PLN
PLN
PLN
PLN
%
PLN

Właściciel

Proszę wprowadzić poprawne imię i nazwisko
Proszę wprowadzić poprawny numer telefonu
Proszę wprowadzić poprawny adres e-mail
Proszę zaznaczyć wymagane zgody
Rozwiąż równanie:
19 3
Niepoprawny wynik